Преимущества перед 3D или 2D-ограждениями
Ограждение из шестиугольной сетки двойного кручения имеет ряд преимуществ перед типами ограждений
Длительные сроки эксплуатации
Привычные ограждения из 3D панелей быстро приходят в негодность. От частых ударов мячом соединения разрушаются, панели начинают разваливаться, при этом торчащие в разные стороны прутки травмируют игроков. В наших ограждениях сварочные соединения сведены к минимуму, а в сетке они отсутствуют вовсе. Поэтому оно выдерживает большие ударные нагрузки.
Внешний вид
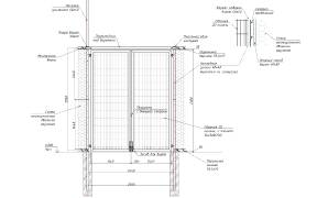
Надежный металлический профиль каркаса ограждения покрывается атмосферостойким полимерным порошковым покрытием в два слоя. Шестиугольная сетка изготавливается из оцинкованной стальной проволоки и имеет защитное покрытие из полимера низкого давления (ПНД), который устойчив к ультрафиолетовому излучению и не боится мороза.
Устойчивость к большим нагрузкам и ремонтопригодность
Наши ограждения продуманы с учетом возможных ремонтов. В случае падения дерева или актов вандализма, выполнение ремонта можно осуществлять без привлечения специалистов. Простая и универсальная конструкция позволяет с минимальными затратами произвести замену поврежденных элементов или установить заплатку на поврежденный участок сетки.
Конкурентная цена и низкая стоимость эксплуатационных расходов
Стоимость наших ограждений сопоставима со стандартными 3D и 2D ограждениями и значительно дешевле других более сложных ограждений, при этом гарантия и продуманность конструкций позволяет долгие годы не беспокоится за состояние ограждений.
Появились вопросы?
Оставьте свои контакты и мы проконсультируем вас
Описание
Многослойная антикоррозийная защита всех деталей
Надежные крепления на болтовых соединениях
Минимизирует риск разрушения конструкций от постоянных вибраций
Сетка двойного кручения
Надежность и простота
Выполненные проекты
По состоянию на середину 2022 года нами выполнено более 100 проектов
Получить консультацию по установке ограждения
Комплексное строительство Универсальной спортивной площадки (УСП) под ключ
Отличительные особенности: асфальтовое основание с бордюрным камнем по периметру, подготовленный грунт в виде земляного корыта, песчаная и щебеночная отсыпка; Полимерное спортивное покрытие; ограждение из шестиугольной сетки высотой 3 или 4 метра; Спортивное игровое оборудование в виде баскетбольных щитов с кольцом и сеткой, стойки баскетбольные.
Отличительные способности: основание из щебня разных фракций, покрытие - искусственная трава, ограждение из шестиугольной сетки двойного кручения высотой 3 или 4 метра, дополнительное заграждение из синтетической сетки по торцевым сторонам площадки, устройство ворот для возможного доступа специальной техники, спортивное игровое оборудование – ворота для минифутбола.
Помимо имеющихся готовых проектов исполненных УСП можем спроектировать и осуществить монтаж по вашим индивидуальным требованиям.
Помимо игрового поля УСП можно расширить и организовать зоны для установки Силового спортивного оборудования (воркаут) и Детского игрового оборудования, а также мест отдыха (скамьи, урны). Можно предусмотреть освещение.
Вы можете заказать Обратный звонок
Направить запрос на нашу электронную почту: bastionnord@mail.ru
Или позвонить и получить консультацию: 8 (927) 268-49-09
Мы находимся: Самарская область, г. Тольятти, ул. Ярославская, 12










